117 S Sunnyside Drive, Blue Mound, IL
$130,000
Active
3 Beds
1 Bath
1,932 SqFt
0.19 Acres
1 Car Garage
About 117 S Sunnyside Drive
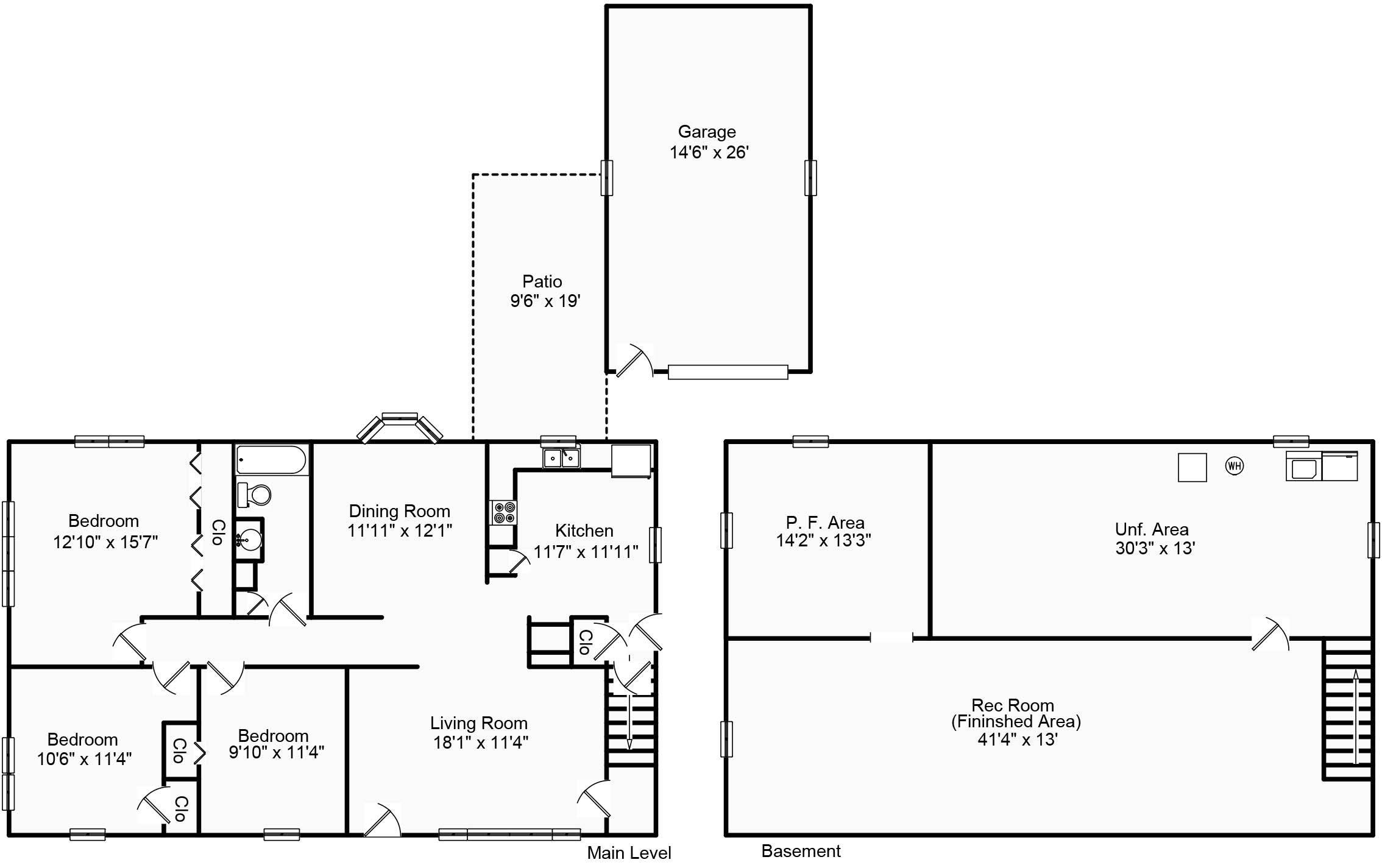
Remodeled ranch in Meridian School District. This three bedroom boasts all new flooring, paint, windows and gutters. Basement could be finished out to buyers taste for additional living space. There is a two car detached garage. Home features electric baseboard heating system. This beautiful home is move in ready! Seller prefers to sell as is since total remodel.
Facts & Features
| MLS® # | 6255510 |
|---|---|
| Price | $130,000 |
| Cost Per Square Foot | $67 |
| Bedrooms | 3 |
| Bathrooms | 1.00 |
| Full Baths | 1 |
| Total Finished Square Feet | 1,932 |
| Total Finished Above Grade | 1,288 |
| Main | 1,288 |
| Basement Total | 1,288 |
| Basement Finished | 644 |
| Basement Unfinished | 644 |
| Acres | 0.19 |
| Year Built | 1959 |
| Type | Single Family |
| Sub-Type | Single Family Residence |
| Style | Ranch |
| Status | Active |
| Taxes | $3,102 |
| Tax Year | 2024 |
Community Information
| Address | 117 S Sunnyside Drive |
|---|---|
| Subdivision | Sunnyside Add |
| City | Blue Mound |
| County | Macon |
| State | IL |
| Zip Code | 62513 |
Amenities
| Parking | Garage, Detached |
|---|---|
| # of Garage Spaces | 1 |
| Is Waterfront | No |
| Has Pool | No |
Interior
| Appliances | Dishwasher, Electric Water Heater |
|---|---|
| Heating | Electric |
| Cooling | Central Air |
| Has Basement | Yes |
| Basement | Unfinished, Full |
| Fireplace | No |
| # of Stories | 1 |
| Stories | One |
Exterior
| Roof | Shingle |
|---|---|
| Construction | Vinyl Siding |
| Foundation | Basement |
School Information
| District | Meridian Dist 15 |
|---|
Additional Information
| Date Listed | October 9th, 2025 |
|---|---|
| Days on Market | 21 |
| Zoning | RES |
Listing Details
| Agent | Jason White |
|---|---|
| Office | Brinkoetter REALTORS® |