4074 Sheffield Court, Decatur, IL
$220,000
Active - Under Contract
4 Beds
2 Baths
2,368 SqFt
0.25 Acres
2 Car Garage
About 4074 Sheffield Court
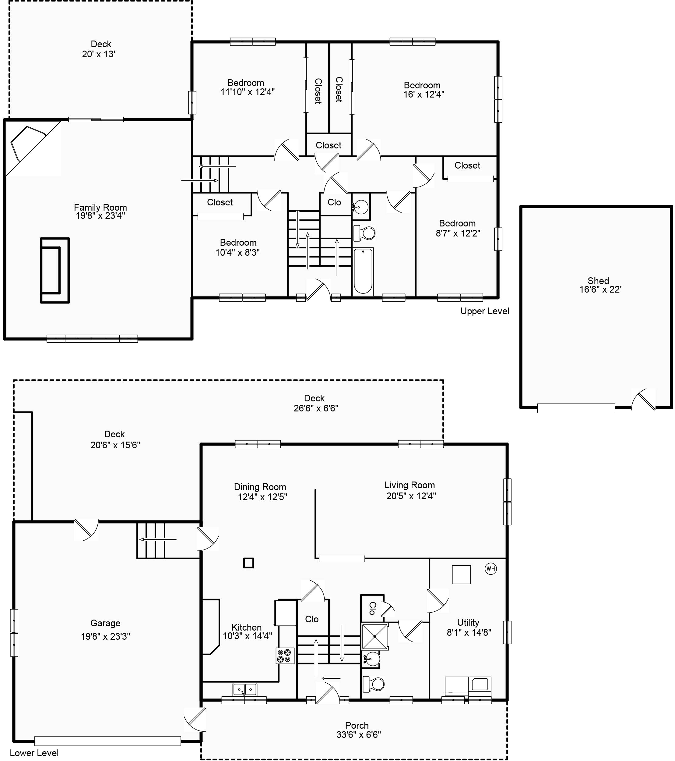
Welcome to this spacious and well-maintained 4-bedroom, 2-bathroom trilevel home, perfectly situated at the end of a peaceful cul-de-sac. Step inside to find fresh paint throughout the home, creating a bright and inviting atmosphere. The updated kitchen shines with brand-new appliances (2025) and freshly painted cabinets (Sept. 2025), making it a perfect space for cooking and entertaining. Enjoy year-round comfort with a new HVAC system (2024) and peace of mind thanks to a new roof and gutters (2025). OPEN HOUSE: 10/12/25 2pm-4pm. Open house will be cancelled if seller accepts an offer before. Additional highlights include: Washer and dryer (2024) Newly redone front porch (2024) perfect for relaxing Beautiful new landscaping Fenced backyard ideal for pets, play, or gardening 1.5-car detached garage currently set up as a gym – easily customizable to your needs Bonus shed for extra storage Don’t miss this move-in ready home with modern updates and a fantastic location!!
Facts & Features
| MLS® # | 6255387 |
|---|---|
| Price | $220,000 |
| Cost Per Square Foot | $93 |
| Bedrooms | 4 |
| Bathrooms | 2.00 |
| Full Baths | 2 |
| Total Finished Square Feet | 2,368 |
| Total Finished Above Grade | 1,430 |
| Upper 1 | 1,430 |
| Lower | 938 |
| Acres | 0.25 |
| Year Built | 1964 |
| Type | Single Family |
| Sub-Type | Single Family Residence |
| Style | Tri-Level |
| Status | Active - Under Contract |
| Taxes | $4,652 |
| Tax Year | 2024 |
Community Information
| Address | 4074 Sheffield Court |
|---|---|
| Subdivision | Windsor Village 5th Add |
| City | Decatur |
| County | Macon |
| State | IL |
| Zip Code | 62526 |
Amenities
| Parking | Attached, Detached, Garage |
|---|---|
| # of Garage Spaces | 2 |
| Is Waterfront | No |
| Has Pool | No |
Interior
| Appliances | Dryer, Dishwasher, Gas Water Heater, Microwave, Oven, Refrigerator, Washer |
|---|---|
| Heating | Gas |
| Cooling | Central Air |
| Fireplace | Yes |
| # of Fireplaces | 1 |
| # of Stories | 2 |
| Stories | Two, Multi/Split |
Exterior
| Roof | Asphalt |
|---|---|
| Construction | Vinyl Siding |
| Foundation | Slab |
School Information
| District | Decatur Dist 61 |
|---|
Additional Information
| Date Listed | October 6th, 2025 |
|---|---|
| Days on Market | 21 |
| Zoning | MUN |
Listing Details
| Agent | Tony Piraino |
|---|---|
| Office | Brinkoetter REALTORS® |