Loading floorplan...
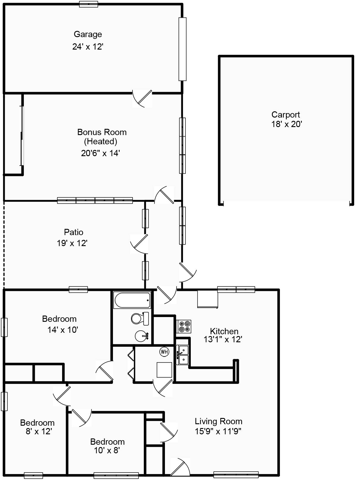
1645 W Center Street, Decatur, IL Floorplan
  • 1024w

1645 W Center Street, Decatur, IL

$67,500

Active

3 Beds

1 Bath

925 SqFt

0.18 Acres

2 Car Garage

About 1645 W Center Street

This 3-bedroom, 1-bath ranch offers more than meets the eye with a spacious 20' x 14' bonus room—perfect for a family room, hobby space, or home office. The property features both an attached garage and a carport for added convenience. Previously used as an investment property, it’s a great fit for any buyer, whether you’re looking for your next home or a solid addition to your portfolio. Currently there is no homestead exemption on the property, but if owner-occupied, taxes could be reduced by approximately $600 annually. Located on Decatur’s west side, this home combines value and potential in one package—schedule your showing today!

Facts & Features

MLS® # 6254971
Price $67,500
Cost Per Square Foot $73
Bedrooms 3
Bathrooms 1.00
Full Baths 1
Total Finished Square Feet 925
Total Finished Above Grade 925
Main 925
Acres 0.18
Year Built 1962
Type Single Family
Sub-Type Single Family Residence
Style Ranch
Status Active
Taxes $1,800
Tax Year 2024

Community Information

Address 1645 W Center Street
Subdivision B & G Dev 1st Add
City Decatur
County Macon
State IL
Zip Code 62526

Amenities

Parking Attached, Garage, Carport
# of Garage Spaces 2
Is Waterfront No
Has Pool No

Interior

Appliances Gas Water Heater, Dishwasher
Heating Forced Air, Gas
Cooling Central Air
Basement Crawl Space
Fireplace No
# of Stories 1
Stories One

Exterior

Lot Dimensions 137'x56'
Roof Asphalt, Shingle
Construction Wood Siding
Foundation Crawlspace

School Information

District Decatur Dist 61

Additional Information

Date Listed September 8th, 2025
Days on Market 39
Zoning RES

Listing Details

AgentTony Piraino
OfficeBrinkoetter REALTORS®

Listing Map

Request a Showing

Provide a valid email address.
When would you like to view this property?