285 Glencoe Avenue, Decatur, IL
$181,900
Active
3 Beds
3½ Baths
2,740 SqFt
0.18 Acres
2 Car Garage
About 285 Glencoe Avenue
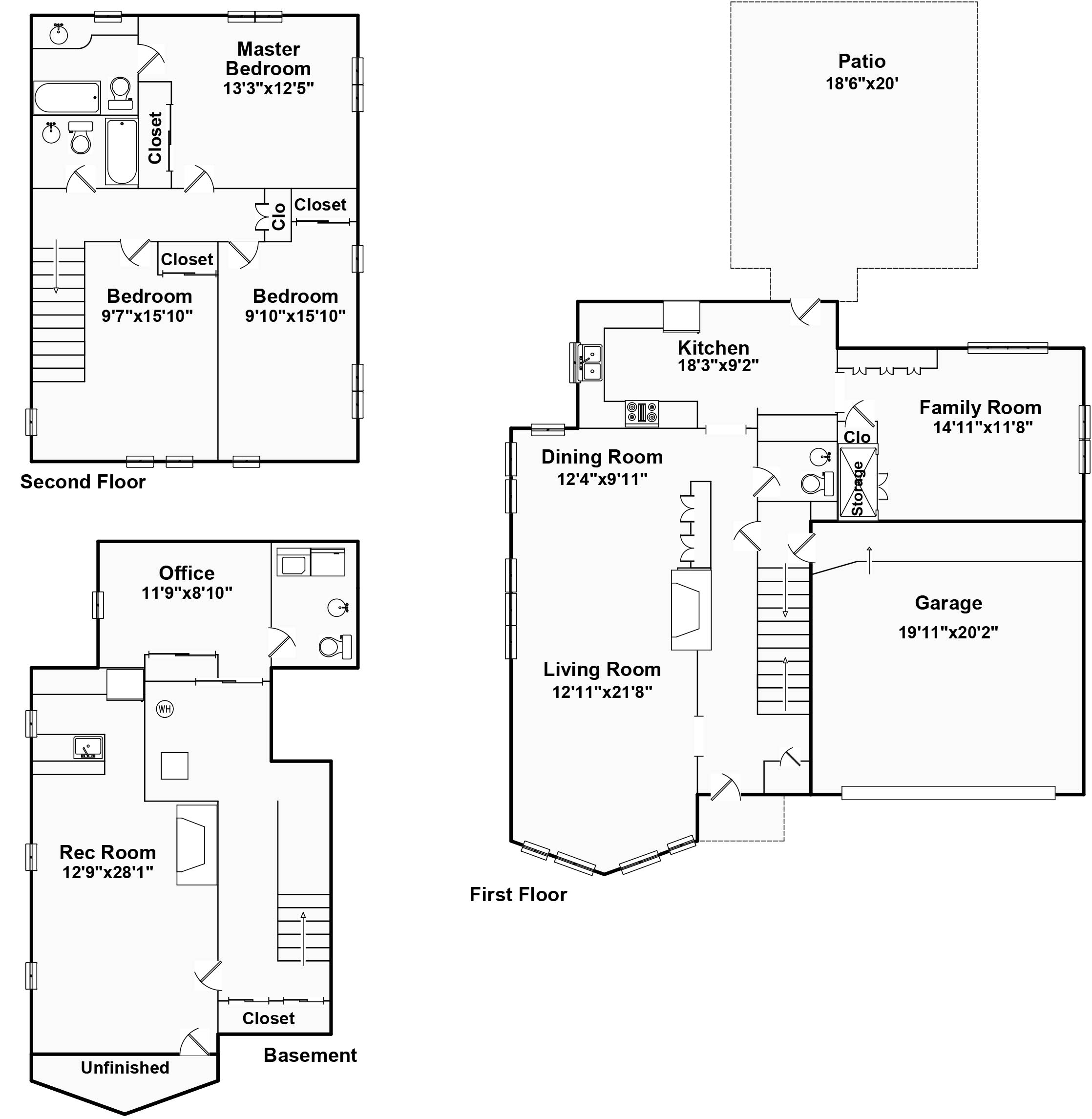
Looking for that perfect family home? Then you've found it! This place fits many types of families and is ready for them all! As you come in the foyer you'll see there's a walk-way that runs the width of the house, adjacent to the vaulted living room with a fireplace that flows easily into the dining room. There's 3 bedrooms including a master bedroom with bath, with the probability of the main floor family room becoming a fourth! There's plenty of space with a full finished basement with a cherry wet bar, a half bath and a second fireplace! The back yard is fenced offering a secure place for pets! Most windows have been replaced, and all rooms have been repainted. The updates on this home include siding and roof 2024; air conditioning, 3 years; water heater 5 years; refrigerator, double over and microwave 1 1/2 years; kitchen countertop, 2017. This space is truly a one-of-a-kind, inside and out! Come see what it's all about!
Facts & Features
| MLS® # | 6254199 |
|---|---|
| Price | $181,900 |
| Cost Per Square Foot | $66 |
| Bedrooms | 3 |
| Bathrooms | 4.00 |
| Full Baths | 3 |
| Half Baths | 1 |
| Total Finished Square Feet | 2,740 |
| Total Finished Above Grade | 1,946 |
| Main | 1,125 |
| Upper 1 | 821 |
| Basement Total | 840 |
| Basement Finished | 794 |
| Basement Unfinished | 46 |
| Acres | 0.18 |
| Year Built | 1955 |
| Type | Single Family |
| Sub-Type | Single Family Residence |
| Style | Contemporary |
| Status | Active |
| Taxes | $3,429 |
| Tax Year | 2024 |
Open Houses
| Sunday, November 2nd, 1:00pm - 3:00pm |
Community Information
| Address | 285 Glencoe Avenue |
|---|---|
| Subdivision | Dennis Add |
| City | Decatur |
| County | Macon |
| State | IL |
| Zip Code | 62522 |
Amenities
| Parking | Attached, Garage |
|---|---|
| # of Garage Spaces | 2 |
| Is Waterfront | No |
| Has Pool | No |
Interior
| Appliances | Dryer, Dishwasher, Gas Water Heater, Oven, Refrigerator, Washer, Microwave |
|---|---|
| Heating | Floor Furnace, Forced Air |
| Cooling | Central Air |
| Has Basement | Yes |
| Basement | Finished, Unfinished, Full |
| Fireplace | Yes |
| # of Fireplaces | 2 |
| Fireplaces | Gas, Family/Living/Great Room, Wood Burning |
| # of Stories | 2 |
| Stories | Two |
Exterior
| Windows | Replacement Windows |
|---|---|
| Roof | Shingle |
| Construction | Vinyl Siding, Stone |
| Foundation | Basement |
School Information
| District | Decatur Dist 61 |
|---|---|
| Elementary | Dennis |
| Middle | Dennis |
| High | Macarthur |
Additional Information
| Date Listed | July 22nd, 2025 |
|---|---|
| Days on Market | 101 |
| Zoning | MUN |
Listing Details
| Agent | Michael Sexton |
|---|---|
| Office | Brinkoetter REALTORS® |